Pokrycia dachowe
Ocynkowana stal
Ocynkowana stal powlekana
Ocynkowana stal powlekana MATT
Ocynkowana stal powlekana STUCCO
Ocynkowana stal powlekana MATT STUCCO
Ocynkowana stal powlekana MARCEGAGLIA
Ocynkowana stal powlekana MATT MARCEGAGLIA
Aluminium
Aluminium powlekane
Aluminium powlekane W.15
Aluminium powlekane STUCCO
Aluminium powlekane W.15 STUCCO
Tytan-cynk
Tytan-cynk Patynowany
Miedź
Stal nierdzewna
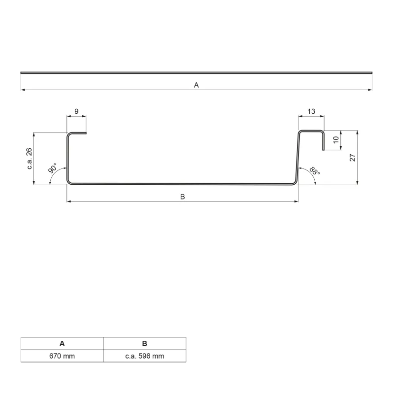
Profil FALZ z podwójnym rąbkiem stojącym
| Materiał | Tytan-cynk Patynowany |
| Wykończenie powierzchni | Popielaty |
| RAL | 7043 |
Opis produktu
Profil KJG FALZ KJG to nowoczesne rozwiązanie dachowe o eleganckim wyglądzie i długiej żywotności. Jest to gotowy pas blachy z systemem podwójnych rąbków stojących, dostarczany bezpośrednio na plac budowy w formie wyprofilowanej, bez konieczności dalszego profilowania. Oznacza to szybszy montaż, precyzyjne dopasowanie i maksymalną oszczędność czasu na budowie.
Dzięki precyzyjnej obróbce i wysokiej jakości materiałom, profil KJG FALZ doskonale nadaje się do nowych budynków i renowacji dachów, od tradycyjnych po nowoczesne projekty architektoniczne. Idealnie nadaje się do dachów o niskim nachyleniu ± 3° i sprawdza się nawet w trudnych warunkach klimatycznych.
Zalety profilu KJG FALZ:
- Dostarczane w stanie wyprofilowanym, gotowe do montażu.
- Szczelne połączenie bez widocznych śrub.
- Odporność na wiatr, deszcz i śnieg.
- Elegancki i czysty wygląd dachu.
- Niska waga pokrycia.
- Szeroka gama kolorów i wykończeń powierzchni.
- Bezobsługowe i trwałe pokrycie.
Skrót materiału: SG
Kod produktu: FALZ-DSD
Tabela produktowa
* Produkcja na zamówienie
Zn 99.995% DIN EN 1179
Przeliczone kursem: 1 € = 4,27 zł
Zalecane ceny detaliczne
Następne komponenty

Punkty sprzedaży
W Europie jesteśmy w domu. Jesteśmy obecni w 14 krajach i ciągle się rozwijamy. Jeśli gdziekolwiek szukasz solidnego partnera w zakresie dachu, skontaktuj się z nami.
Znajdź sprzedawcę
Chcesz zapytać o nasze produkty albo usługi?
Newsletter
Zapisz się do newslettera, aby regularnie otrzymywać przydatne informacje o produktach KJG.















